独家出售公寓

公寓 需中介费
基础信息
价格
€197,465
≈ ¥154万
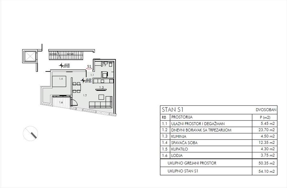
建筑面积
54.10 ㎡
房间数
2 个
房源亮点
车库 电梯 露台
位置信息
Beograd
Opština Čukarica, Banovo brdo, Žarka Vukovića Pucara
在地图上查看位置
详细描述
独家销售位于正在建设中的公寓,位于绝佳位置的班诺沃布尔多,扎尔科·武科维奇·普卡尔街,住宅楼内仅有10套公寓。知名投资者的标志性质量,建筑和装修质量高:*Alumil品牌铝制门窗,三层隔热低辐射玻璃*内部Medijapan门高2.4米,多层橡木地板,Catalano卫浴设备 公寓价格另加10%的增值税,首套房买家可退还增值税。可购买地下车库内的停车位-摇篮式停车位,价格为19000欧元加增值税。*竣工日期2027年6月。*买家无需支付佣金。