3.0 标准的泽蒙公寓,带停车位,ID#2035
公寓
需中介费
上一张
下一张
基础信息
价格
€210,000
≈ ¥164万
建筑面积
71.00 ㎡
房间数
3 个
房源亮点
立即入住
Lođa
停车位
位置信息
Beograd
Opština Zemun, Gornji grad, Sarajevska
在地图上查看位置
协助联系看房
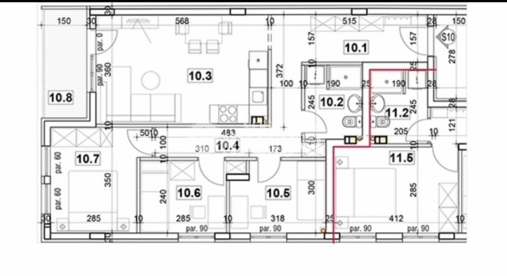
详细描述
提供一套位于新建大楼的优秀公寓,靠近SC Teleoptik。公寓非常明亮,东西向双面朝向。在建设中使用了最现代的技术和高质量的材料。公寓包括走廊、带餐厅部分的客厅、独立的三居室卧室区、浴室和露台。公寓连同一个包含在公寓价格内的停车位一起出售。周围设施齐全。