德丁耶,4.0,218平方米(露台),车库31平方米 ID#1825

公寓 需中介费
基础信息
价格
€1,100,000
≈ ¥858万
建筑面积
166.00 ㎡
房间数
4 个
房源亮点
非顶楼 沙龙式公寓 已合法注册 车库 门禁系统 互联网 有线电视 空调 Lođa 地下室 露台
位置信息
Beograd
Opština Savski venac, Dedinje, Topčiderska
在地图上查看位置
详细描述
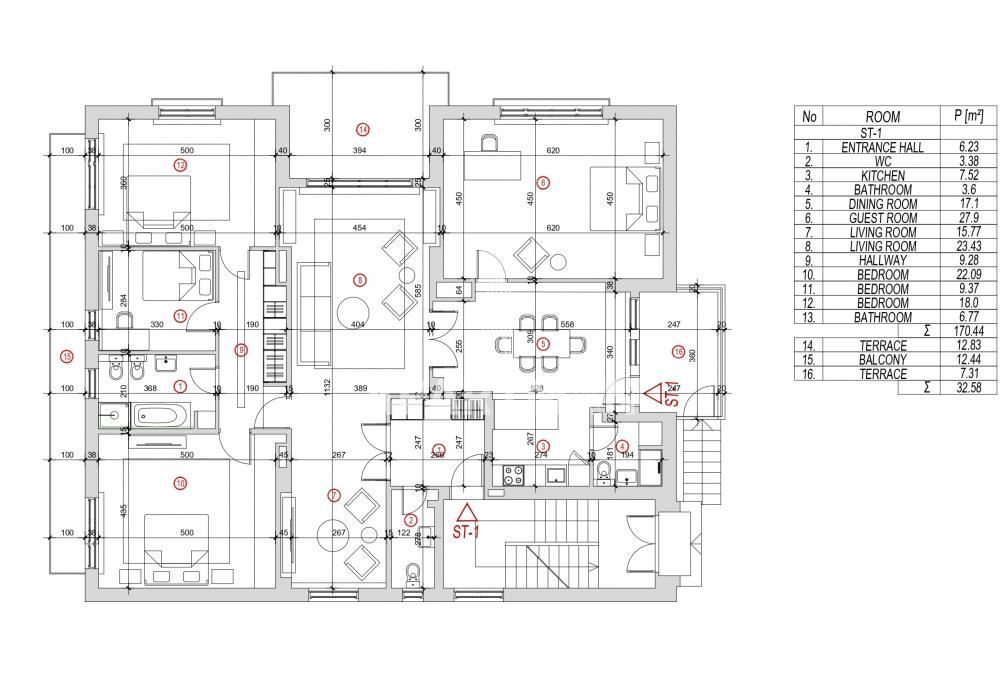
在Topčiderski公园附近,提供一套独特的公寓,客厅式设计,层高3米。该公寓占据整层楼,具有出色的采光和舒适度。公寓由4间卧室、餐厅-客厅与厨房、两间浴室、一个卫生间、走廊和3个面积为32平方米的宽敞露台组成。公寓还设有地下室、洗衣房、锅炉房和31平方米的车库。高层底楼,位于公寓下方。 联系电话******。感谢您查看广告。代理机构在中介注册中的编号为1347。地图仅供参考,不显示房产的准确位置。 代理费2%。