斯坦 37 平方米

公寓 无中介费
基础信息
价格
€80,000
≈ ¥62万
建筑面积
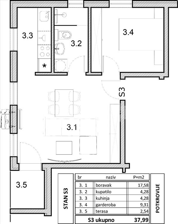
37.99 ㎡
房间数
2 个
房源亮点
非独立房屋中的公寓 可申请退税 已合法注册 门禁系统 互联网 有线电视 空调 Lođa 停车位 电话 露台 热水
位置信息
Beograd
Opština Novi Beograd, Ledine, Isidore Sekulić
在地图上查看位置
详细描述
非常优质的新建住宅,拥有建筑许可,位于城市部分,靠近新高速公路(10分钟可达尤里·加加林和新贝尔格莱德街区)。连接城市各部分的交通非常便利,设有六条公交线路的站点(72,601,603,604,605,610),以及周边设施(商店、面包店、药店、餐馆等),所有这些都在100米范围内。房间包括:客厅、厨房、卧室、浴室、露台。公寓配有停车位(包含在公寓价格内)。现金买家可在公证处办理过户手续。预计竣工日期为2025年9月31日。