出售新建公寓,无中介

公寓 无中介费
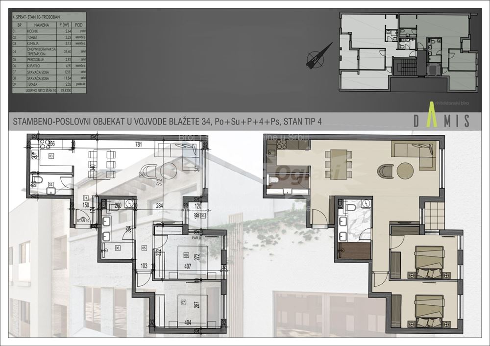
基础信息
价格
€240,160
≈ ¥187万
建筑面积
76.00 ㎡
房间数
3 个
房源亮点
非顶楼 立即入住 可申请退税 已合法注册 车库 门禁系统 互联网 有线电视 空调 电梯 停车位 电话 露台 热水
位置信息
Beograd
Opština Zvezdara, Olimp, Vojvode Blažete
在地图上查看位置
详细描述
提供不同面积和楼层的公寓以及商业空间。地点:贝尔格莱德,兹韦兹达拉,沃伊沃代布拉泽特34号,靠近奥林匹克体育中心。 公寓已完工,即可入住。 直接从投资者处购买公寓,无需支付佣金。 有退还增值税的可能性。 价格可商议。 联系人:米奥德拉格,电话:065/******