2.5间位于Ledinama的建筑物,ID#1978
公寓
需中介费
上一张
下一张
基础信息
价格
€136,500
≈ ¥106万
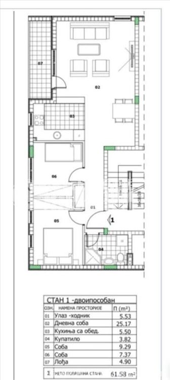
建筑面积
62.00 ㎡
房间数
2 个
房源亮点
能源证书
非顶楼
门禁系统
互联网
空调
露台
位置信息
Beograd
Opština Novi Beograd, Ledine, Surčinska
在地图上查看位置
协助联系看房
详细描述
提供一套位于新建楼盘的优质公寓,靠近主街。附近有公交车站和面包店。房间包括:宽敞的客厅,贯通式,带餐厅和厨房。两间卧室,一间浴室和一个露台。适合居住或出租。可通过住房贷款购买。公寓将于三月底交付。