新建筑,潘特莱伊,增值税退税

公寓 需中介费
基础信息
价格
€161,400
≈ ¥126万
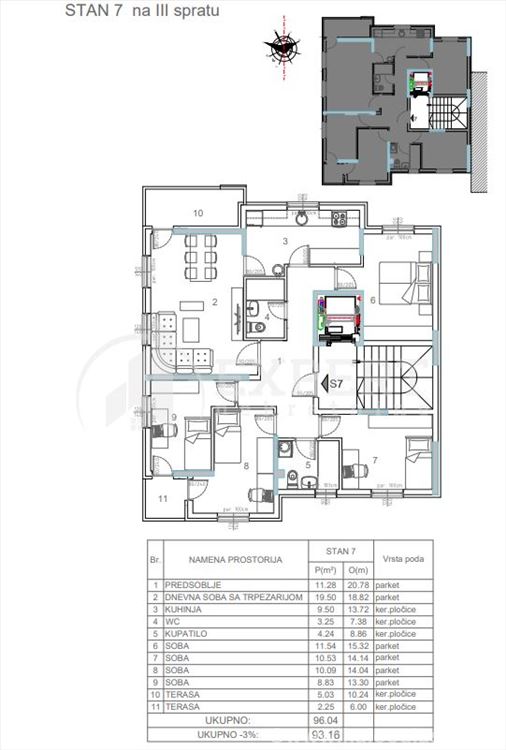
建筑面积
94.94 ㎡
房间数
4 个
房源亮点
车库 门禁系统 电梯 露台 视频监控
位置信息
Niš
Pantelej, Pantelej, Bulevar Svetog Pantelejmona
在地图上查看位置
详细描述
出售在建中的五居室公寓,位于P+ P+ 3住宅楼内。该公寓位于绝佳位置,靠近Pantalejske教堂。公寓面积为94.94平方米,包括入口走廊、带厨房的客厅、四间卧室、浴室、卫生间和两个露台。这种结构的公寓位于在建大楼的第三层,将安装无声电梯。公寓配有附属储藏室,停车位需额外付费。大楼按照高效标准设计,使用优质建筑材料,具有良好的隔热性能。优质的五腔PVC窗框配有铝制百叶窗,地板铺设的是tarket木地板。卫生间的墙壁和地板将铺设瓷砖,并配备完整的卫生设备。公寓内将进行分层供暖的准备工作,并安装空调支架。预计工程将于2023年底完成。符合条件的买家可享受增值税退税。如需更多信息,请随时联系我们。